調布市の賃貸事務所・賃貸オフィス一覧

検索結果 5件のビル

アイビル

Comming Soon
住所 調布市 国領町 7-73-2
最寄り駅

国領駅 徒歩10分

竣工 2004年
階層 地上4階
内覧・空室のお問い合わせ
階数 面積 賃料+共益費 坪単価 保証金/敷金 解約引/礼金
地上1階 15.58坪 180,000円 11,553円 保証金: 3ヶ月 礼金: 1ヶ月 詳細を見る
選択した物件をまとめてお問い合わせいただけます
ビルの詳細を見る

グランドール武戸野

Comming Soon
住所 調布市 国領町 4-8-1
最寄り駅

国領駅 徒歩2分

竣工 1986年05月
階層 地上15階 地下1階
内覧・空室のお問い合わせ
階数 面積 賃料+共益費 坪単価 保証金/敷金 解約引/礼金
地上1階 55.8坪 850,000円 15,233円 敷金: 5ヶ月 礼金: 1ヶ月 詳細を見る
地上1階 30.66坪 470,000円 15,329円 敷金: 6ヶ月 礼金: 1ヶ月 詳細を見る
選択した物件をまとめてお問い合わせいただけます
ビルの詳細を見る

調布Kビル

Comming Soon
住所 調布市 布田 1-36-9
最寄り駅

調布駅 徒歩3分

竣工 1991年10月
階層 地上6階 地下1階
内覧・空室のお問い合わせ
階数 面積 賃料+共益費 坪単価 保証金/敷金 解約引/礼金
地上6階 16.55坪 132,400円 8,000円 敷金: 3ヶ月 礼金: 1ヶ月 詳細を見る
選択した物件をまとめてお問い合わせいただけます
ビルの詳細を見る

調布NKビル

Comming Soon
住所 調布市 布田 4-20-2
最寄り駅

調布駅 徒歩4分

竣工 1992年01月
階層 地上9階 地下1階
内覧・空室のお問い合わせ
階数 面積 賃料+共益費 坪単価 保証金/敷金 解約引/礼金
地上3階 59.44坪 相談 相談 敷金: 12ヶ月 無し 詳細を見る
選択した物件をまとめてお問い合わせいただけます
ビルの詳細を見る

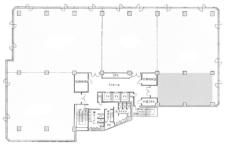
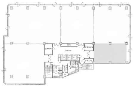
調布丸善ビル

調布丸善ビル基準階図面
  • 調布丸善ビル基準階図面
住所 調布市 布田 4-6-1
最寄り駅

調布駅 徒歩1分

竣工 1994年07月
階層 地上8階 地下1階
内覧・空室のお問い合わせ
階数 面積 賃料+共益費 坪単価 保証金/敷金 解約引/礼金
地上7階 172.95坪 相談 相談 敷金: 12ヶ月 無し 詳細を見る
選択した物件をまとめてお問い合わせいただけます
ビルの詳細を見る
お気に入り中0
お問い合わせ
株式会社 オオシタ商事

ご希望の条件にピッタリのオフィスをお探しいたします

条件などお知らせ頂けましたら、非公開物件含めピッタリのオフィスをご提案させて頂きます。
具体的な物件がお決まりでない場合でもお気軽にお問い合わせください。