KHK池袋ビルの賃貸事務所・賃貸オフィス物件空室情報
KHK池袋ビル
-
{
const thumb = e.target;
const pic = $refs.picture;
pic.setAttribute('alt', thumb.alt);
pic.setAttribute('src', thumb.dataset.lgThumbUrl);
}"
>
KHK池袋ビルは、JR各線「池袋」駅、東京メトロ有楽町線「東池袋」駅からそれぞれ徒歩5分ほどの場所に位置。
(住所:豊島区南池袋2丁目)
地上8階、地下2階建ての賃貸オフィスビル。
1983年に竣工され、新耐震基準をクリアした鉄骨鉄筋コンクリート造の物件です。
空調は、各室で調整可能な個別空調。
光ファイバーを導入し、快適なインターネット環境です。
男女別トイレ完備され、エレベーターは、1基設置されております。
セキュリティは安心の機械警備を採用しており、24時間の使用が可能な物件です。
豊島区、池袋、南池袋エリアで物件をお探しのお客様、詳しい条件などについては、ぜひ一度当社までお気軽にお問い合わせくださいませ。お待ちしております。
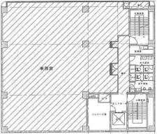
KHK池袋ビルの募集フロア
| 階数 | 面積 | 賃料+共益費 | 坪単価 | 保証金/敷金 | 解約引/礼金 | |
| 地上6階 | 94.87坪 | 相談 | 相談 | 敷金: 6ヶ月 | 無し |
詳細を見る
|
|
選択した物件をまとめてお問い合わせいただけます
|
||||||
KHK池袋ビルのビル情報
| 住所 | 豊島区 南池袋 2-28-13 |
|---|---|
| 最寄り駅 |
池袋駅 徒歩5分 池袋駅 徒歩5分 池袋駅 徒歩5分 東池袋駅 徒歩5分 |
| 竣工 | 1983年11月 |
| 階層 | 地上8階 地下2階 |
| エレベータ | 1基 |
| 駐車場 | あり |
| リニューアル | |
| 開閉時間 |
24時間使用可能 |
| 設備・オプション |
その他設備・オプション大通沿い、新耐震基準、駐車場 |
| 備考 |
・定期借家契約 |
KHK池袋ビルの評価
| 総合評価 |
|---|
|
|
| アクセス | 周辺環境 | ビル設備 |
|---|---|---|
|
|
|
|