虎ノ門石井ビル 3階の賃貸事務所・賃貸オフィス物件空室情報
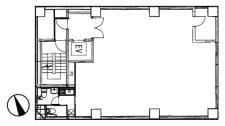
虎ノ門石井ビル 3階の募集フロア情報
内覧・空室のお問い合わせ| 空き状況 | 募集中 (即入居) |
|---|---|
| 月額費用合計 | 700,120円 |
| 保証金/敷金 | 保証金: 10ヶ月 |
| 解約引/礼金 | 無し |
| 種別 | オフィス |
| 面積 | 30.44坪 |
| OAフロア | 無 |
| オプション | ワンフロア |
| 備考 | ■定期借家契約2年 |
※ 表記されている金額はすべて税抜きとなります。(保証金/敷金は除く)
※ ご紹介の物件はすべて媒介です。ご成約の際には規定の仲介手数料を承ります。
虎ノ門石井ビルその他の募集フロア
| 階数 | 面積 | 賃料+共益費 | 坪単価 | 保証金/敷金 | 解約引/礼金 | |
|
選択した物件をまとめてお問い合わせいただけます
|
||||||
虎ノ門石井ビルのビル情報
-
{
const thumb = e.target;
const pic = $refs.picture;
pic.setAttribute('alt', thumb.alt);
pic.setAttribute('src', thumb.dataset.lgThumbUrl);
}"
>
虎ノ門石井ビルは、東京メトロ日比谷線「虎ノ門ヒルズ」駅から徒歩1分、東京メトロ銀座線「虎ノ門」駅から徒歩2分ほどの場所に位置。
(住所:港区虎ノ門1丁目)
地上7階、地下1階建ての賃貸オフィスビル。
1988年に竣工され、新耐震基準をクリアした鉄骨鉄筋コンクリート造の物件です。
空調は、各室で調整可能な個別空調。
光ファイバーを導入し、快適なインターネット環境です。
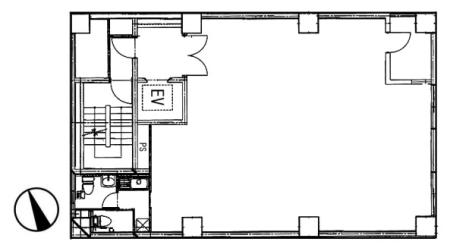
ウォシュレット付き男女別トイレ完備され、エレベーターは、1基設置されております。
セキュリティは安心の機械警備を採用しており、24時間の使用が可能な物件です。
港区、虎ノ門ヒルズ、虎ノ門エリアで物件をお探しのお客様、詳しい条件などについては、ぜひ一度当社までお気軽にお問い合わせくださいませ。お待ちしております。
| 住所 | 港区 虎ノ門 1-16-8 |
|---|---|
| 最寄り駅 |
虎ノ門ヒルズ駅 徒歩1分 虎ノ門駅 徒歩2分 霞ヶ関駅 徒歩9分 |
| 竣工 | 1988年08月 |
| 階層 | 地上7階 地下1階 |
| エレベータ | 1基 |
| 駐車場 | なし |
| リニューアル | |
| 開閉時間 |
24時間使用可能 |
| 設備・オプション |
その他設備・オプション駅徒歩3分以内、新耐震基準 |
| 備考 |
・定期借家契約 ・保証会社加入要 |
虎ノ門石井ビルの評価
| 総合評価 |
|---|
|
|
| アクセス | 周辺環境 | ビル設備 |
|---|---|---|
|
|
|
|