• TOP
  • M-1ビル(エムワンビル)

M-1ビル(エムワンビル)の賃貸事務所・賃貸オフィス物件空室情報

M-1ビル(エムワンビル)

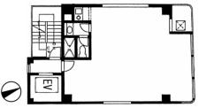
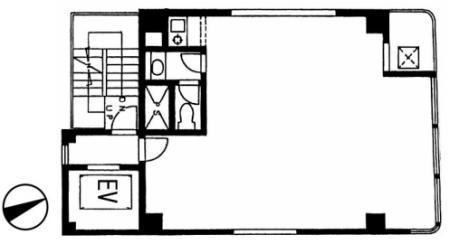
エムワンビル基準階図面
  • エムワンビル基準階図面

M-1ビル(エムワンビル)は、東京メトロ各線「茅場町」駅から徒歩3分、JR京葉線「八丁堀」駅から徒歩5分ほどの場所に位置。
(住所:中央区日本橋茅場町3丁目)

地上8階建ての賃貸オフィスビル。
1992年に竣工され、新耐震基準をクリアした鉄骨造の物件です。

空調は、各室で調整可能な個別空調。
光ファイバーを導入し、快適なインターネット環境です。
ワンフロアーワンテナントの物件ですので、隣室を気にすることなく、プライベートなオフィス空間をご使用頂く事が可能です。
セキュリティは安心の機械警備を採用しており、24時間の使用が可能な物件です。

中央区、茅場町、八丁堀エリアで物件をお探しのお客様、詳しい条件などについては、ぜひ一度当社までお気軽にお問い合わせくださいませ。お待ちしております。



M-1ビル(エムワンビル)の募集フロア

階数 面積 賃料+共益費 坪単価 保証金/敷金 解約引/礼金
地上6階 16.5坪 247,500円 15,000円 保証金: 6ヶ月 解約引: 2ヶ月 詳細を見る
選択した物件をまとめてお問い合わせいただけます

M-1ビル(エムワンビル)のビル情報

住所 中央区 日本橋茅場町 3-4-1
最寄り駅

茅場町駅 徒歩3分

茅場町駅 徒歩3分

八丁堀駅 徒歩5分

竣工 1992年05月
階層 地上8階
エレベータ 1基
駐車場 なし
リニューアル
開閉時間

24時間使用可能

設備・オプション
その他設備・オプション

駅徒歩3分以内、新耐震基準

備考 ・保証会社加入要
・火災保険加入要
・更新料:新賃料1ヶ月分

M-1ビル(エムワンビル)の評価

総合評価
(4.13 / 5.00)
アクセス 周辺環境 ビル設備
(4.40 / 5.00)
(4.00 / 5.00)
(4.00 / 5.00)

M-1ビル(エムワンビル)の周辺地図

M-1ビル(エムワンビル)に似た物件

お気に入り中0
お問い合わせ

閲覧履歴

株式会社 オオシタ商事

ご希望の条件にピッタリのオフィスをお探しいたします

条件などお知らせ頂けましたら、非公開物件含めピッタリのオフィスをご提案させて頂きます。
具体的な物件がお決まりでない場合でもお気軽にお問い合わせください。