岩見ビルディングの賃貸事務所・賃貸オフィス物件空室情報
岩見ビルディング
-
{
const thumb = e.target;
const pic = $refs.picture;
pic.setAttribute('alt', thumb.alt);
pic.setAttribute('src', thumb.dataset.lgThumbUrl);
}"
>
岩見ビルディングは、JR各線・東京メトロ各線「飯田橋」駅から徒歩5分ほどの場所に位置。
(住所:千代田区飯田橋4丁目)
地上8階建ての賃貸オフィスビル。
1984年に竣工され、新耐震基準をクリアした鉄骨鉄筋コンクリート造の物件です。
2016年に大規模改修工事が実施されました。
空調は、各室で調整可能な個別空調。
光ファイバーを導入し、快適なインターネット環境です。
ウォシュレット付き男女別トイレ完備され、エレベーターは、1基設置されております。
セキュリティは安心の機械警備を採用しており、24時間の使用が可能な物件です。
千代田区、飯田橋エリアで物件をお探しのお客様、詳しい条件などについては、ぜひ一度当社までお気軽にお問い合わせくださいませ。お待ちしております。
岩見ビルディングの募集フロア
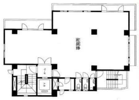
| 階数 | 面積 | 賃料+共益費 | 坪単価 | 保証金/敷金 | 解約引/礼金 | |
| 地上6階 | 41.98坪 | 629,700円 | 15,000円 | 敷金: 7ヶ月 | 解約引: 1ヶ月 |
詳細を見る
|
|
選択した物件をまとめてお問い合わせいただけます
|
||||||
岩見ビルディングのビル情報
| 住所 | 千代田区 飯田橋 4-2-1 |
|---|---|
| 最寄り駅 |
飯田橋駅 徒歩5分 飯田橋駅 徒歩5分 飯田橋駅 徒歩5分 飯田橋駅 徒歩5分 |
| 竣工 | 1984年02月 |
| 階層 | 地上8階 |
| エレベータ | 1基 |
| 駐車場 | 調査中 |
| リニューアル | 2016年 |
| 開閉時間 |
24時間使用可能 |
| 設備・オプション |
その他設備・オプション新耐震基準 |
| 備考 |
・保証会社加入要 |
岩見ビルディングの評価
| 総合評価 |
|---|
|
|
| アクセス | 周辺環境 | ビル設備 |
|---|---|---|
|
|
|
|